Açıklama
Fan Bileşenleri ve Malzeme Özellikleri
Gövde yüksek kaliteli galvaniz sac çelikten üretilmektedir. HBDD modellerin fanları korozyona karşı dirençli yüksek kaliteli galvaniz çelikten üretilmiştir. Bütün modeller asenkron motora sahiptir
Fan Yapısı
Çift emişli, radyal fan tipindedir. Fan kanatları öne eğimli düzenli akış sağlayacak arodinamik yapıdadır.
Avantajları
Düşük enerji ile maksimum verim sağlarlar. Konstrüksiyonundaki servis kapağı sayesinde bakım ve arızalara kolay müdahale imkanı sağlar.
Hız Kontrolü
Kendinden üç kademeli motora sahiptir.
Kullanım Alanları
İşyerleri, ofisler, fabrikalar, hastaneler, restoranlar vb. büyük miktarlarda taze hava gereksinimi olan yerlerde kullanılır. Egzoz hava tahliyesinde filtre ile kullanılması gereklidir.
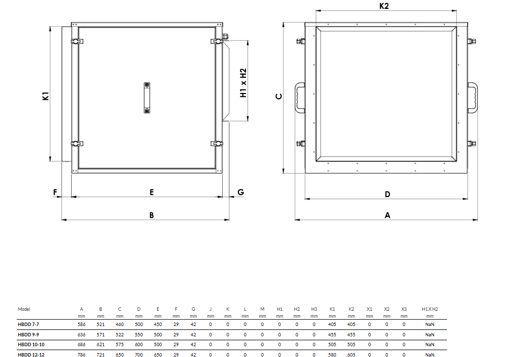
| Model | A | B | C | D | E | F | G | J | K | L | M | H1 | H2 | H3 | K1 | K2 | X1 | X2 | X3 | H1 X H2 |
|---|---|---|---|---|---|---|---|---|---|---|---|---|---|---|---|---|---|---|---|---|
| mm | mm | mm | mm | mm | mm | mm | mm | mm | mm | mm | mm | mm | mm | mm | mm | mm | mm | mm | mm | |
| HBDD 7-7 | 586 | 521 | 460 | 500 | 450 | 29 | 42 | 0 | 0 | 0 | 0 | 0 | 0 | 0 | 405 | 405 | 0 | 0 | 0 | NaN |
| HBDD 9-9 | 636 | 571 | 522 | 550 | 500 | 29 | 42 | 0 | 0 | 0 | 0 | 0 | 0 | 0 | 455 | 455 | 0 | 0 | 0 | NaN |
| HBDD 10-10 | 686 | 621 | 575 | 600 | 500 | 29 | 42 | 0 | 0 | 0 | 0 | 0 | 0 | 0 | 505 | 505 | 0 | 0 | 0 | NaN |
| HBDD 12-12 | 786 | 721 | 650 | 700 | 650 | 29 | 42 | 0 | 0 | 0 | 0 | 0 | 0 | 0 | 580 | 605 | 0 | 0 | 0 | NaN |
Endüstriyel Havalandırma Çözümleri
Uzman ekibimizle iletişime geçin, size en uygun çözümü sunalım.